Werkswohnungen von Peck.Daam Architekten
Bild 21/22
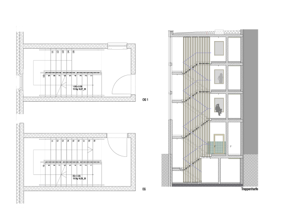
Schnitt und Grundriss Treppenharfe
Bild: Peck.Daam Architekten