Werkswohnungen von Peck.Daam Architekten
Bild 19/22
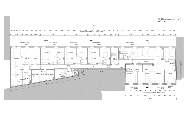
Grundriss 2. Obergeschoss
Bild: Peck.Daam Architekten