Werkstattverfahren in Berlin entschieden
Bild 19/38
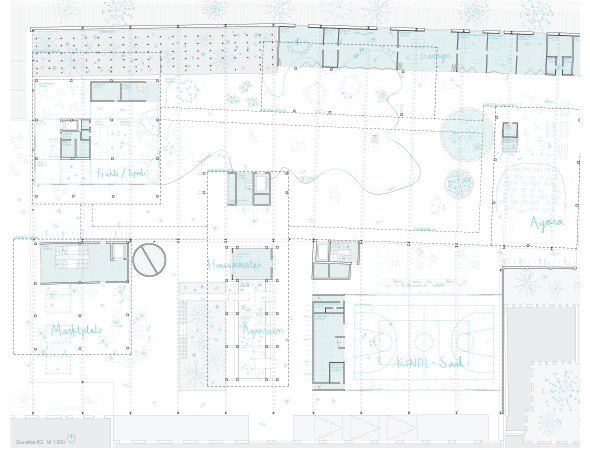
Entwurf „Kindl-Garten“: EG
Bild: StudioVlayStreeruwitz, atelier le balto