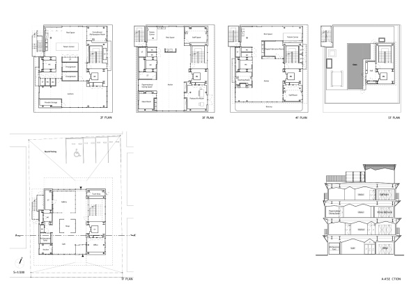
Werkstätten in Osaka von Kosuke Bando und nanometer

Bild 40/42

Bild: Kosuke Bando Architects / nanometer architecture