Wellnesstempel in Südschweden von Johan Sundberg
Bild 39/47
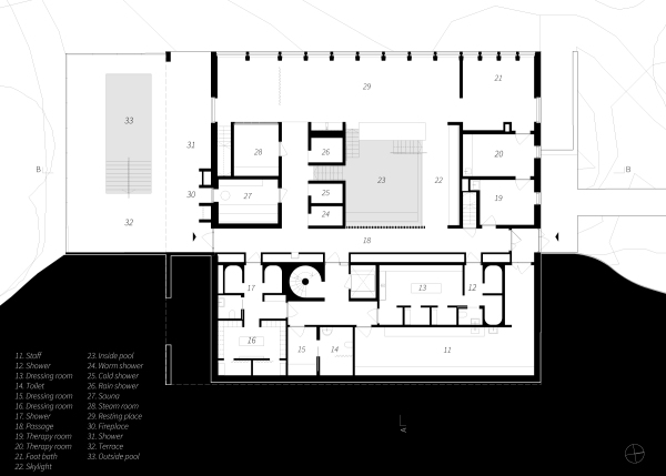
Grundriss 1. Untergeschoss
Bild: Johan Sundberg Architects