Die Meldung in Bildern
Gemeindehaus umsichtig gefaltet
Wannenmacher + Möller in Versmold
Bild 22/27
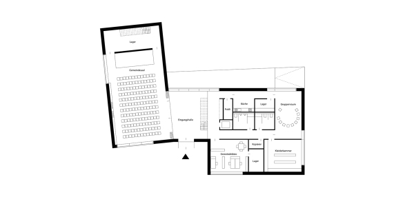
Grundriss Erdgeschoss
Bild: Wannenmacher + Möller