Wannenmacher + Möller gewinnen Schulbauwettbewerb in Essen
Bild 20/28
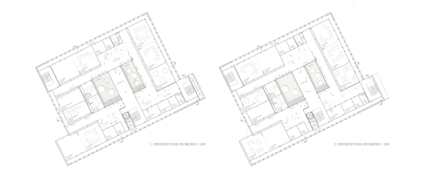
3. Preis: Lamott. Lamott Architekten, Stuttgart
Bild: Lamott. Lamott Architekten