Villenumbau von Forsberg Architekten in Baden-Württemberg
Bild 13/17
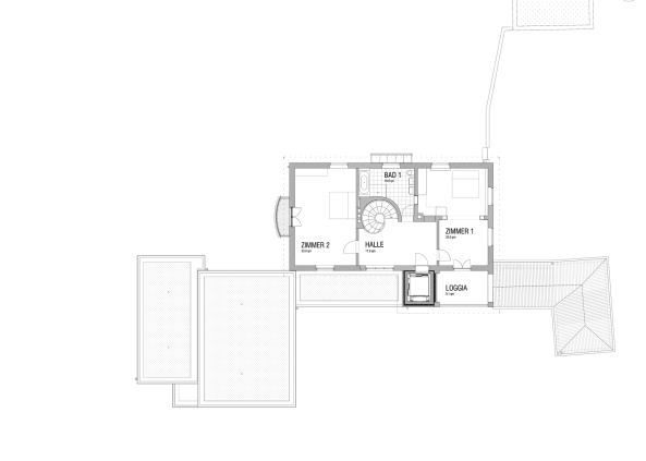
Grundriss 1. Obergeschoss
Bild: Forsberg Architekten