Die Meldung in Bildern
Kühl am Punta Fuego
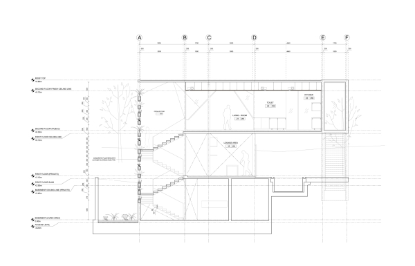
Villa von CAZA architects auf den Philippinen
Bild 32/32
Querschnitt
Bild: CAZA