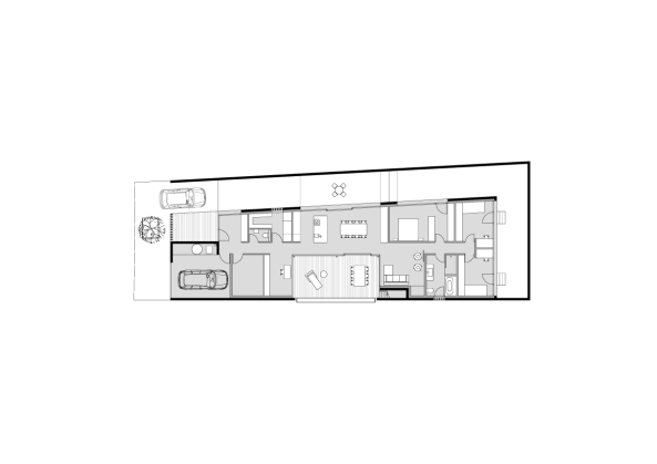
Villa, Dachterrasse, Beton, Rheintal, Vorarlberg, Bechter Zaffignani Architekten, Wohnhaus, House, Concrete, Atrium

Bild 8/10