Die Meldung in Bildern
Putz und Attika
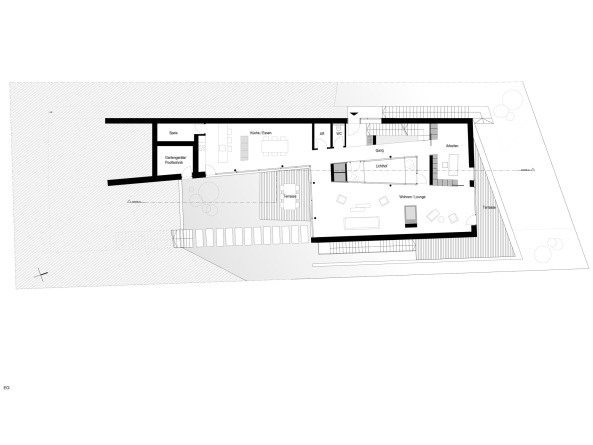
Villa mit Donaublick bei Linz
Bild 21/24
Bild: x architekten