Die Meldung in Bildern
Klare Kanten
Villa in Ljubljana von OFIS Arhitekti
Bild 17/26
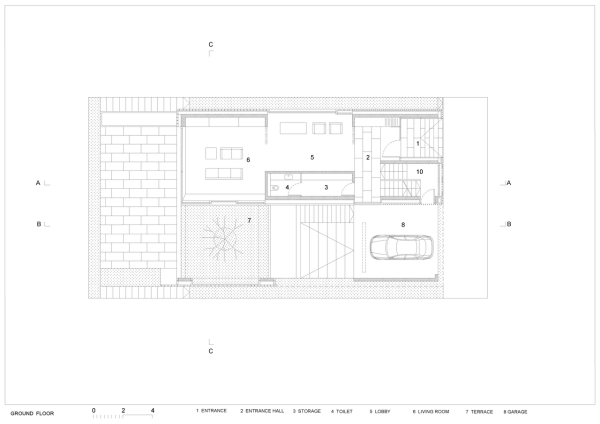
Grundriss Erdgeschoss
Bild: OFIS Arhitekti