Die Meldung in Bildern
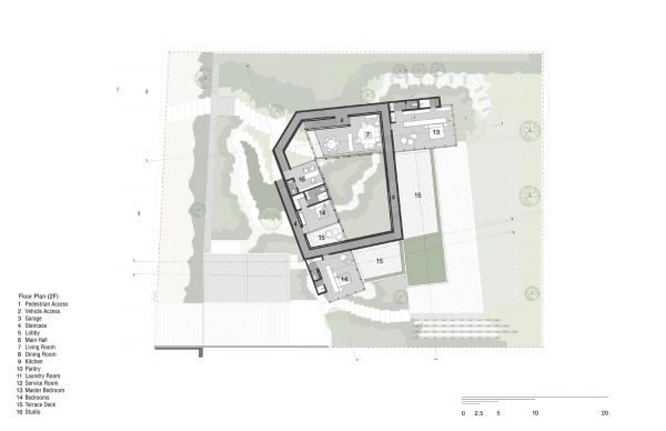
Mexikanisches Labyrinth
Villa in Ciudad López Mateos von Rojkind Arquitectos
Bild 20/26
Bild:
Rojkind Arquitectos