Die Meldung in Bildern
Sichtbeton trifft Satteldach
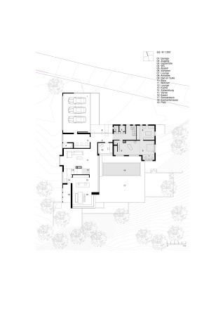
Villa am Bodensee von Biehler Weith
Bild 20/23
EG
Bild: Biehler Weith Associated