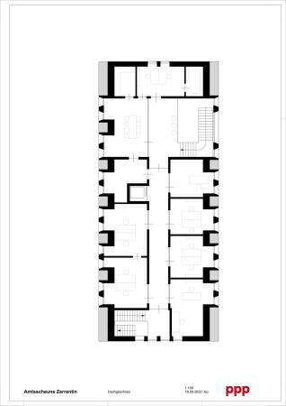
Verwaltungsbau in Zarrentin von ppp architekten + stadtplaner
Bild 13/16
Grundriss Dachgeschoss
Bild: PPP Architekten + Stadtplaner