Bild 31/63
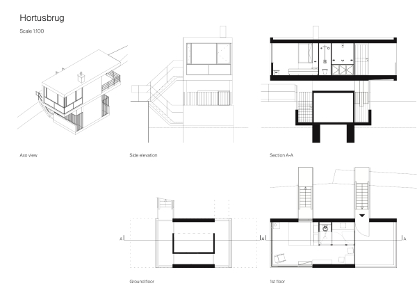
Zimmer 204: Hortusbrug am Botanischen Garten, Nieuwe Herengracht. Klappbrücke, Baujahr 1956, Architekt Dirk Sterenberg.
Bild: SWEETS hotel / Mirjam Bleeker
Bild 31/63
Zimmer 204: Hortusbrug am Botanischen Garten, Nieuwe Herengracht. Klappbrücke, Baujahr 1956, Architekt Dirk Sterenberg.
Bild: SWEETS hotel / Mirjam Bleeker