Vécsey Schmidt Architekt*innen in Basel
Bild 18/23
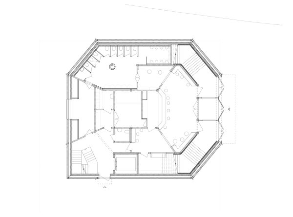
Grundriss Erdgeschoss Pavillon
Bild: Vécsey Schmidt Architekt*innen