Die Meldung in Bildern
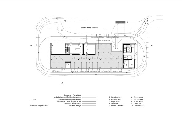
Werkzeugkasten in Oerlikon
Unterwerk von illiz architektur
Bild 19/26