Die Meldung in Bildern
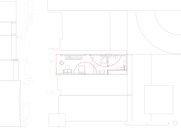
Wohnen in Halbkreis und Dreieck
Unprofessional.studio in Taipeh
Bild 17/18
1. Obergeschoss
Bild: unprofessional.studio