Universitätsgebäude von Josep Ferrando in Buenos Aires
Bild 15/30
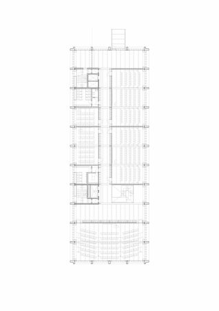
Grundriss 1. Obergeschoss
Bild: Josep Ferrando