Universitätsgebäude in London von Herzog & de Meuron
Bild 23/27
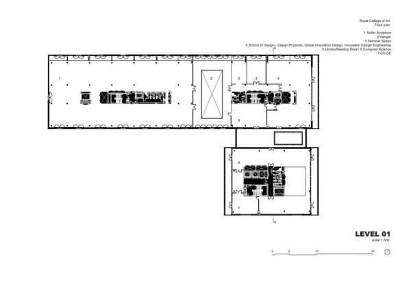
Grundriss 1. Obergeschoss
Bild: Herzog & de Meuron