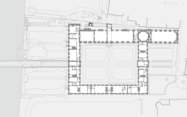
Universitätsgebäude in Cambridge von Witherford Watson Mann
Bild 24/29
Grundriss 1. Obergeschoss
Bild: Witherford Watson Mann