Die Meldung in Bildern
Über Eck gedacht
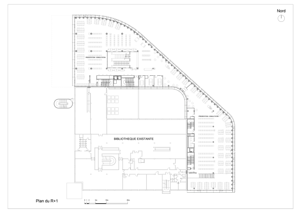
Universitätsbibliothek von Ropa in Paris
Bild 23/28
Grundriss 1. Obergeschoss
Bild: ROPA + ASSOCIÉS