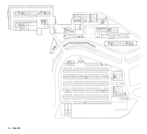
Uniklinik-Erweiterung von Riegler Riewe Architekten
Bild 20/24
Grundriss Level 0
Bild: Riegler Riewe Architekten