Unigebäude in Leverkusen von augustinundfrank/winkler
Bild 35/39
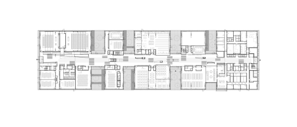
Grundriss EG
Bild: augustinundfrank/winkler