Die Meldung in Bildern
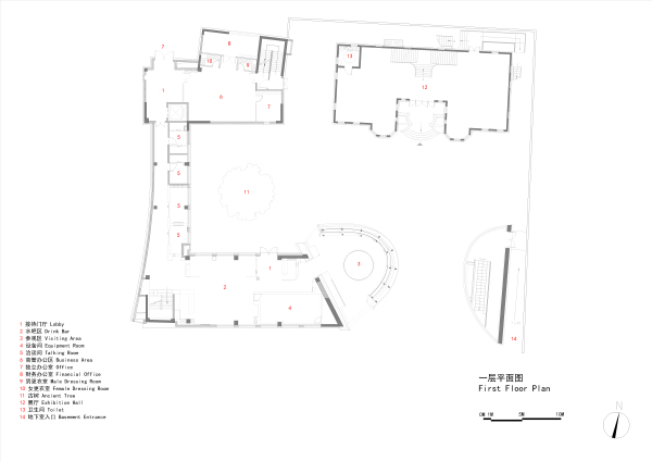
Vom Gefängnis zum Museum
Umnutzung und Erweiterung in Suzhou von Lacime Architects
Bild 28/35
Erdgeschoss
Bild: Lacime