Die Meldung in Bildern
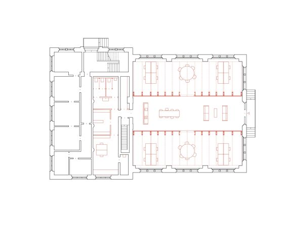
Ateliers in der Maschinenhalle
Umnutzung in Leipzig von KO/OK Architektur
Bild 13/17
Grundriss
Bild: KO/OK Architektur