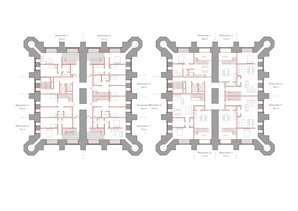
Grundrisse Obergeschoss 1 und Zwischengeschoss 2

Bild 8/15

Grundrisse Obergeschoss 1 und Zwischengeschoss 2

Bild: Westphal Architekten