Wilhelminismus, Eisenbahndirektion, Dachaufbau, Fenster,  Bestand, Fassade, klassizistisch, monumental, kadawittfeldarchitektur, EASA, Eisenbahn, railway, proudness, Stolz, Balkone, Büro, Zellenbüro, Club

Bild 12/14

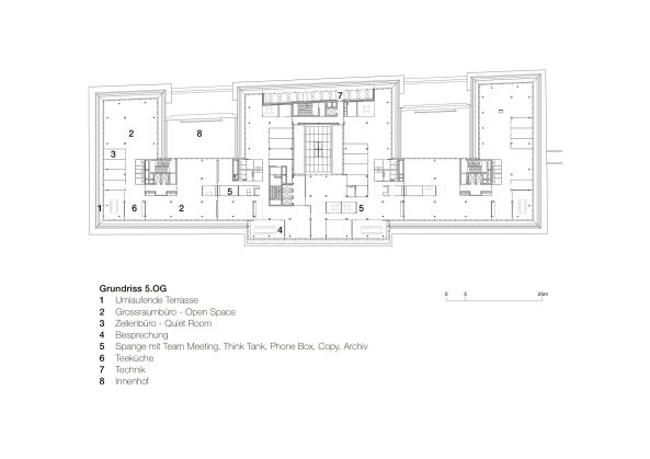
5. Geschoss