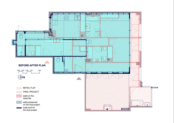
Im Bestand wurden Abriss- und Umbaumaßnahmen vollzogen

Bild 29/31

Im Bestand wurden Abriss- und Umbaumaßnahmen vollzogen

Bild: TAKK