Die Meldung in Bildern
Kunst in der Zuckerfabrik
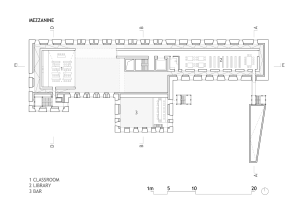
Umbau von Scapelab in Ljubljana
Bild 32/40
Grundriss Zwischengeschoss
Bild: Scapelab