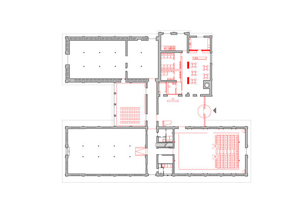
Grundriss Erdgeschoss mit baulichen Ergänzungen

Bild 19/22

Grundriss Erdgeschoss mit baulichen Ergänzungen

Bild: Peter Zirkel Architekten