Bezuidenhoutseweg 30, KAAN Architecten, Neubau, Umbau, Fertigstellung, transformation, new building, office, Braaksma & Roos Architectenbureau, Holz, Stein, Leder, drehbare Fenster, Mosaik, Innenhof, Niderlande, 2017, Public Private Partnership, Baunetz, Baunetz-Meldung, Architektur, Architekt, architect, architecture, Architekt gesucht, Meldungen, architecture-news, Architektur Deutschland, deutsche Architekten, german architecture, young architects

Bild 26/32

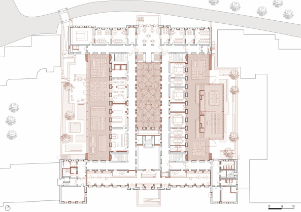
Grundriss Erdgeschoss