Umbau von Hütten & Paläste auf Berliner Kindl-Areal
Bild 24/27
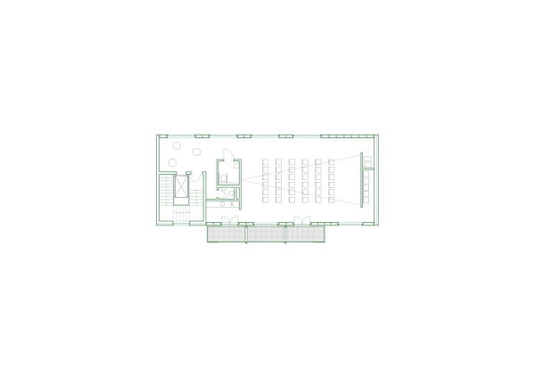
Grundriss 4. OG
Bild: Hütten und Paläste