Umbau von Hütten & Paläste auf Berliner Kindl-Areal
Bild 22/27
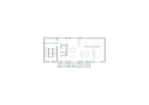
Grundriss Wohnen 2
Bild: Hütten und Paläste