Die Meldung in Bildern
Im Weddinger Hinterhof
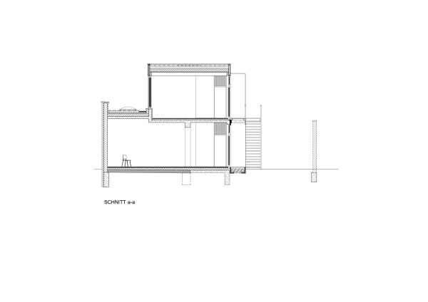
Umbau von BARarchitekten in Berlin
Bild 34/35
Schnitt
Bild: BARarchitekten