Die Meldung in Bildern
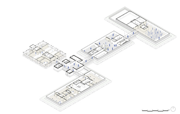
Vom Firmensitz zum Rathaus
Umbau von Archipelago in Brüssel
Bild 27/34
Grundriss 5. Obergeschoss
Bild: archipelago