Die Meldung in Bildern
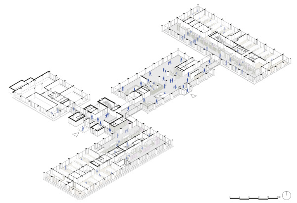
Vom Firmensitz zum Rathaus
Umbau von Archipelago in Brüssel
Bild 25/34
Grundriss Erdgeschoss
Bild: archipelago