Die Meldung in Bildern
Facelift für die Markthalle
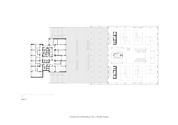
Umbau von Ameller Dubois in Pau
Bild 20/23
Erstes Obergeschoss
Bild: © Ameller Dubois