Die Meldung in Bildern
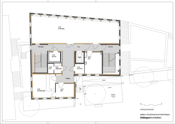
Hölderlinhaus in Nürtingen
Umbau von Aldinger Architekten
Bild 14/24
Grundriss Erdgeschoss
Bild: Aldinger Architekten