Die Meldung in Bildern
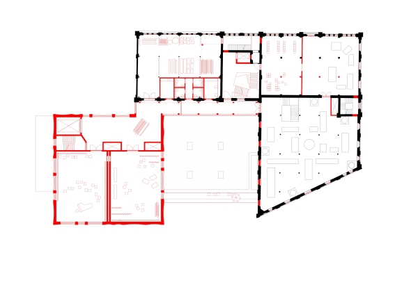
Theater in der Elde-Mühle
Umbau und Erweiterung von D/Form in Parchim
Bild 21/22
Grundriss 4. Obergeschoss
Bild: D/Form