Die Meldung in Bildern
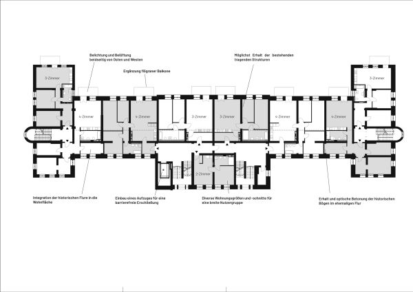
Wohnen in der Infanterieschießschule
Umbau in Zossen von cubus plan
Bild 26/30
Grundriss 1. Obergeschoss
Bild: cubus plan gmbh