Die Meldung in Bildern
Schulen im Raumschiff
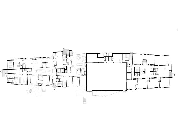
Umbau in Utrecht von VenhoevenCS architecture + urbanism
Bild 18/25
Erdgeschoss
Bild:
VenhoevenCS