Die Meldung in Bildern
Metallischer Schleier in Nantou
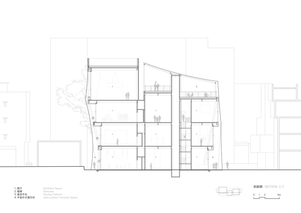
Umbau in Shenzhen von TAO
Bild 33/37
Längsschnitt
Bild: Trace Architecture Office TAO