Umbau in Rotterdam von RHWZ Architekten und WDJArchitecten
Bild 25/32
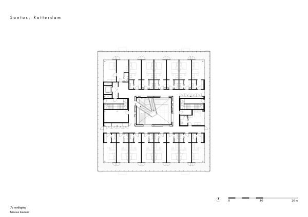
Grundriss 7. Obergeschoss
Bild: Renner Hainke Wirth Zirn Architekten / WDJArchitekten