Die Meldung in Bildern
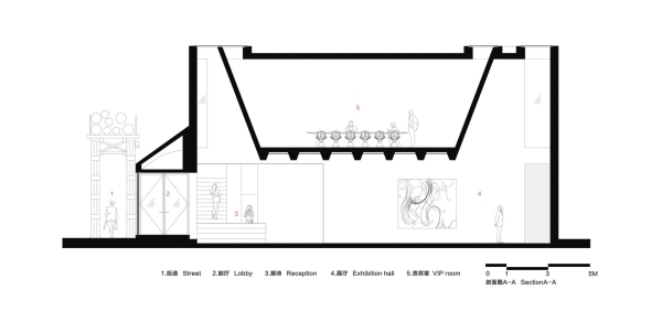
Kunstbezirk im Wandel
Umbau in Peking von Archstudio
Bild 28/31
Bild: Archstudio