Umbau in Pardubice von Proks Prikryl architekti
Bild 35/40
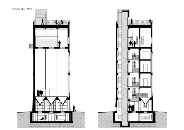
Querschnitt
Bild: Prokš Přikryl architekti