Die Meldung in Bildern
Rost-Riegel für die Kunst
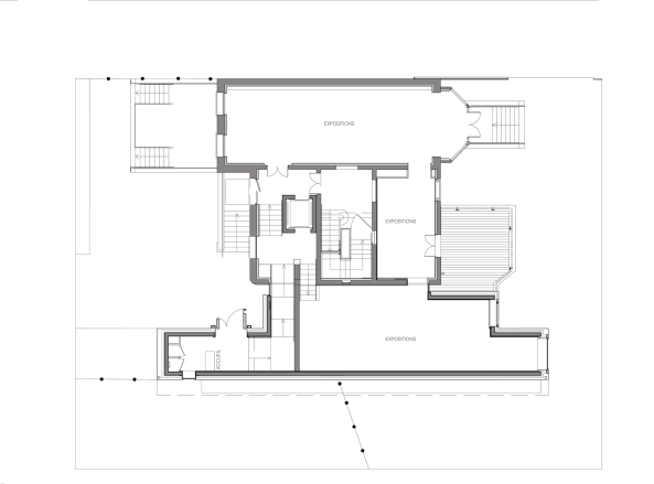
Umbau in Montreuil bei Paris
Bild 16/18
EG