Die Meldung in Bildern
Schaulager fürs Victoria and Albert
Umbau in London von Diller Scofidio + Renfro
Bild 18/19
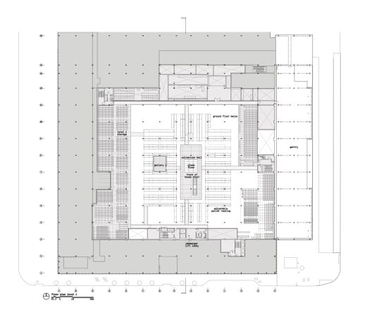
Grundriss
Bild: Diller Scofidio Renfro