Die Meldung in Bildern
Wohnen im Stadl
Umbau in Ingolstadt von Büro Mühlbauer
Bild 17/21
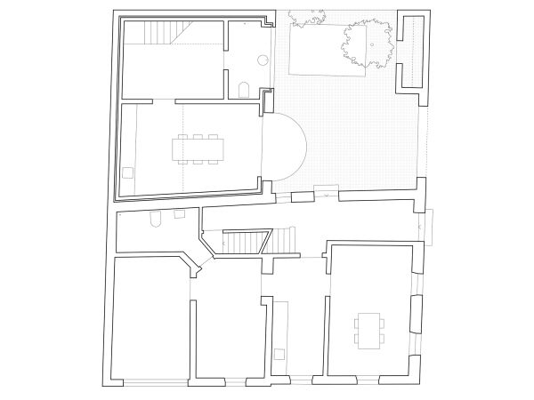
Grundriss Erdgeschoss
Bild: BÜRO MÜHLBAUER